eMobility Cube
-
Infos
Text und Fakten
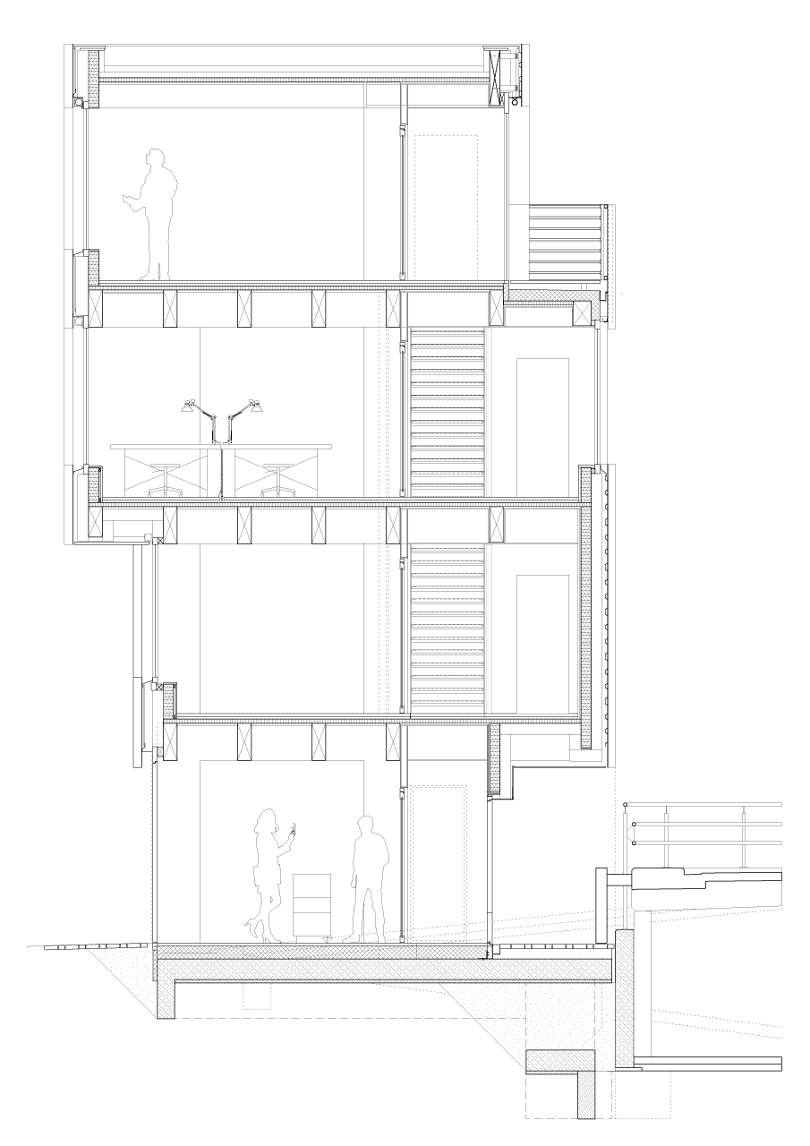
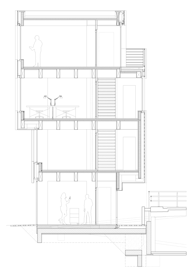
Neue Prototypen: Viergeschossiger Holzbau zur Erprobung von Elektromobilitätsanwendungen und integrierten Mobilitätskonzepten in Wolfsburg
Mit dem eMoblity-Cube wurde an einer städtebaulich herausfordernden Situation ein komplexes Raumprogramm mit verschiedenen Nutzungen realisiert. Das Baugrundstück war sehr begrenzt und bot nur wenig Platz zur Realisierung der vielfältigen Anforderungen. Die Idee des Hauses ist daher die vertikale Stapelung der unterschiedlichen Funktionen zu einem prägnanten viergeschossigen Baukörper, der von vielen Standorten aus sichtbar ist. Die gekannte Metallfassade lässt das Gebäude von unterschiedlichen Standorten ganz unterschiedlich wirken, wie man es von Linsenrasterbildern (Wackelbildern) kennt. Die Mobilität des Betrachters verändert hier die Wahrnehmung, weckt Aufmerksamkeit und macht Lust auf einen Besuch. Mit seiner Konstruktion aus tragenden Vollholzelementen ist es der derzeit einzige viergeschossige Holzbau in Niedersachsen.
Planungszeitraum:
2014Kooperation:
- B+G Ingenieure Bollinger und Grohmann, Berlin
Auftraggeber / Bauherr:
Stadt WolfsburgAdresse:
Wolfsburg
Team:
- Marc Günnewig
- Jan Kampshoff
- Birgit Brewe
Fotografen/innen:
- Jan Kampshoff












