Update Torhaus
Umbau eines denkmalgeschützten Torhaus in Münster
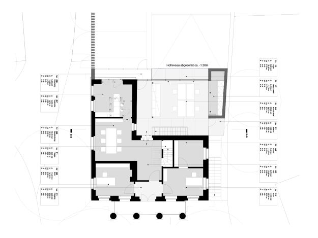
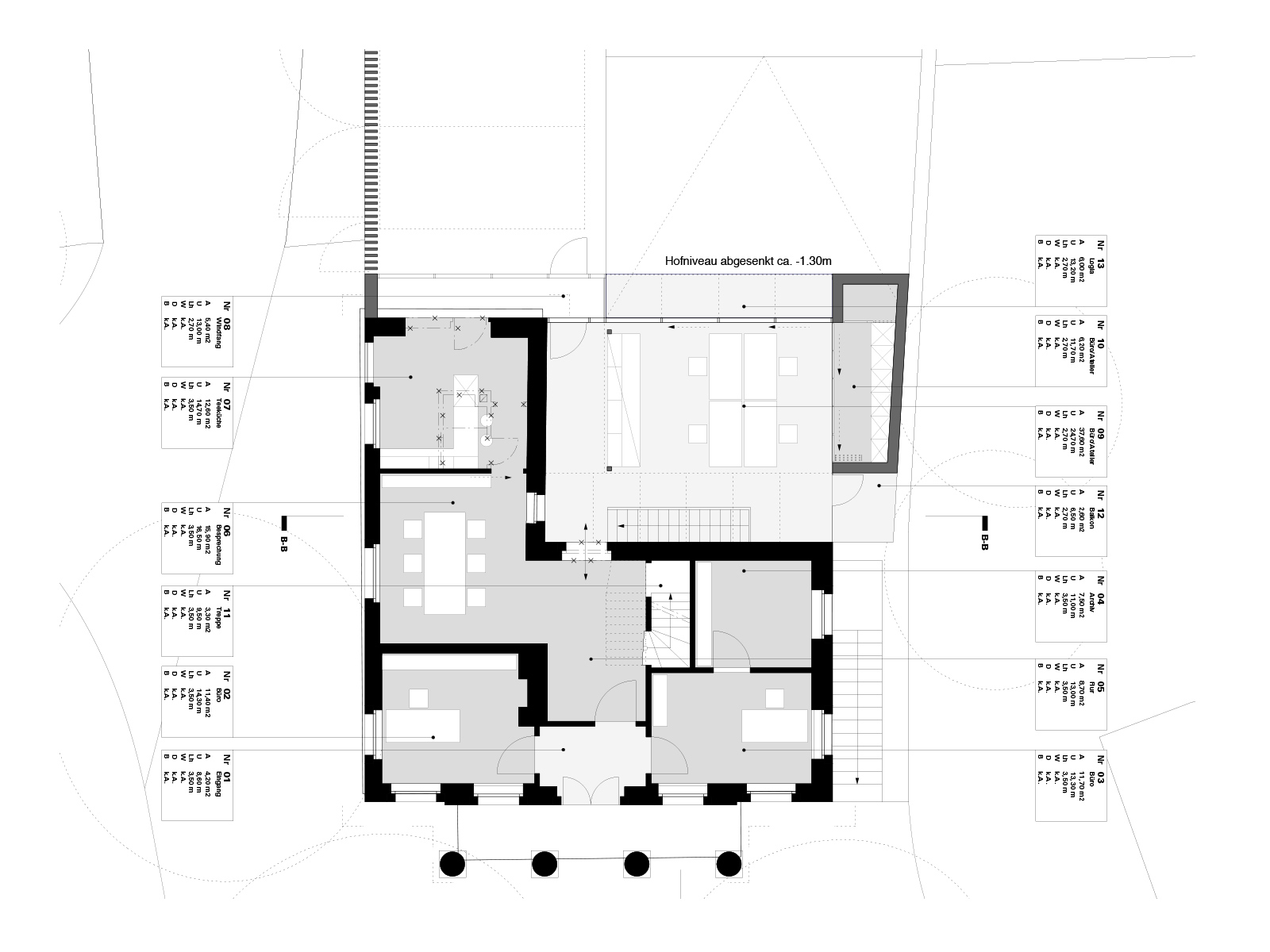
Das von Wilhelm Ferdinand Lipper im 18. Jahrhundert errichtete Torhaus soll zur Hofseite durch einen L-förmigen Anbau erweitert werden, um durch eine Erweiterung der Nutzfläche dem Gebäude eine angemessene Nutzung zuzuführen. Das Konzept setzt hierbei auf einen Kontrast von Materialität zur Stärkung der Lesbarkeit von Alt- und Neubau. Der Anbau orientiert sich zum Innenhof und ist somit nur für die Nutzer des Gebäudes erfahrbar. Die großzügige Verglasung öffnet sich zum Garten und definiert einen reizvollen Übergangsbereich zwischen historischem Innenraum und dem Freiraum im Hof. Der Entwurf entstand in enger Zusammenarbeit mit den städtischen Denkmalschützern.
Team
Marc Günnewig
Jan Kampshoff
Jan Krahe