Das Fluxus-Modul
-
Infos
Text und Fakten
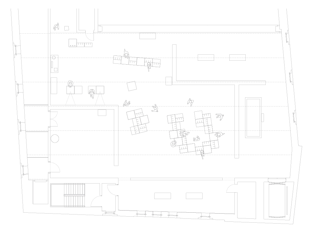
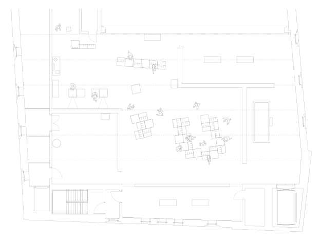
Ausstellungsarchitektur für „FLUXUS – Kunst für Alle!“ im Museum Ostwall, Dortmunder U
Für die Ausstellung „FLUXUS – Kunst für Alle!“ des Museums Ostwall im Dortmunder U wurde modulorbeat beauftragt eine Ausstellungsarchitektur zu entwerfen. Die Architektur arbeitet mit einem speziell für die Fluxus-Schau entwickelten Ausstellungsmodul aus Furniersperrholz, das auf vielfältige Weise spielerisch eingesetzt wird. Horizontal oder vertikal, als Regal, Vitrine oder Podest fügen sich die Module zu einer prägenden Raumstruktur im großen Oberlichtsaal des Dortmunder U. Mit Einsatzböden und -wänden, sowie Acrylglasscheiben werden die Grundrahmen für die jeweilige Nutzung ausgestattet. Die Fixierung dieser Ausstattungselemente sowie der Module untereinander erfolgt durch gewöhnliches Paket-Spannband.
Planungszeitraum:
2012Auftraggeber / Bauherr:
Museums Ostwall im Dortmunder UTeam:
- Marc Günnewig
- Jan Kampshoff
- Anna Scheermann
Fotografen/innen:
- Thorsten Arendt












